
Stephs ST #3 West Bedford, NS B4B0L1
3 Beds
4 Baths
2,243 SqFt
UPDATED:
Key Details
Property Type Townhouse
Sub Type Townhouse
Listing Status Active
Purchase Type For Sale
Square Footage 2,243 sqft
Price per Sqft $332
Subdivision West Bedford
MLS® Listing ID 202519895
Style 3 Level
Bedrooms 3
Half Baths 1
Lot Size 0.550 Acres
Acres 0.5497
Property Sub-Type Townhouse
Source Nova Scotia Association of REALTORS®
Property Description
Location
Province NS
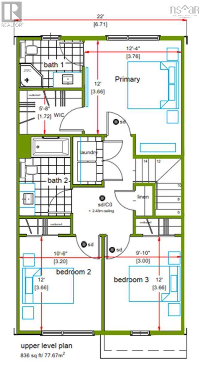
Rooms
Kitchen 1.0
Extra Room 1 Second level 20.8 x 14.6 Living room
Extra Room 2 Second level 11.4 x 10.4 Kitchen
Extra Room 3 Second level 10.4 x 11 Dining room
Extra Room 4 Second level 2 Piece Bath (# pieces 1-6)
Extra Room 5 Second level 7.8 x 9.4 Den
Extra Room 6 Third level 12.4 x 12 Primary Bedroom
Interior
Cooling Heat Pump
Flooring Laminate, Tile
Exterior
Parking Features Yes
View Y/N No
Private Pool No
Building
Lot Description Landscaped
Story 3
Sewer Municipal sewage system
Architectural Style 3 Level
Others
Ownership Freehold






