REQUEST A TOUR If you would like to see this home without being there in person, select the "Virtual Tour" option and your agent will contact you to discuss available opportunities.
In-PersonVirtual Tour

$ 17
Active
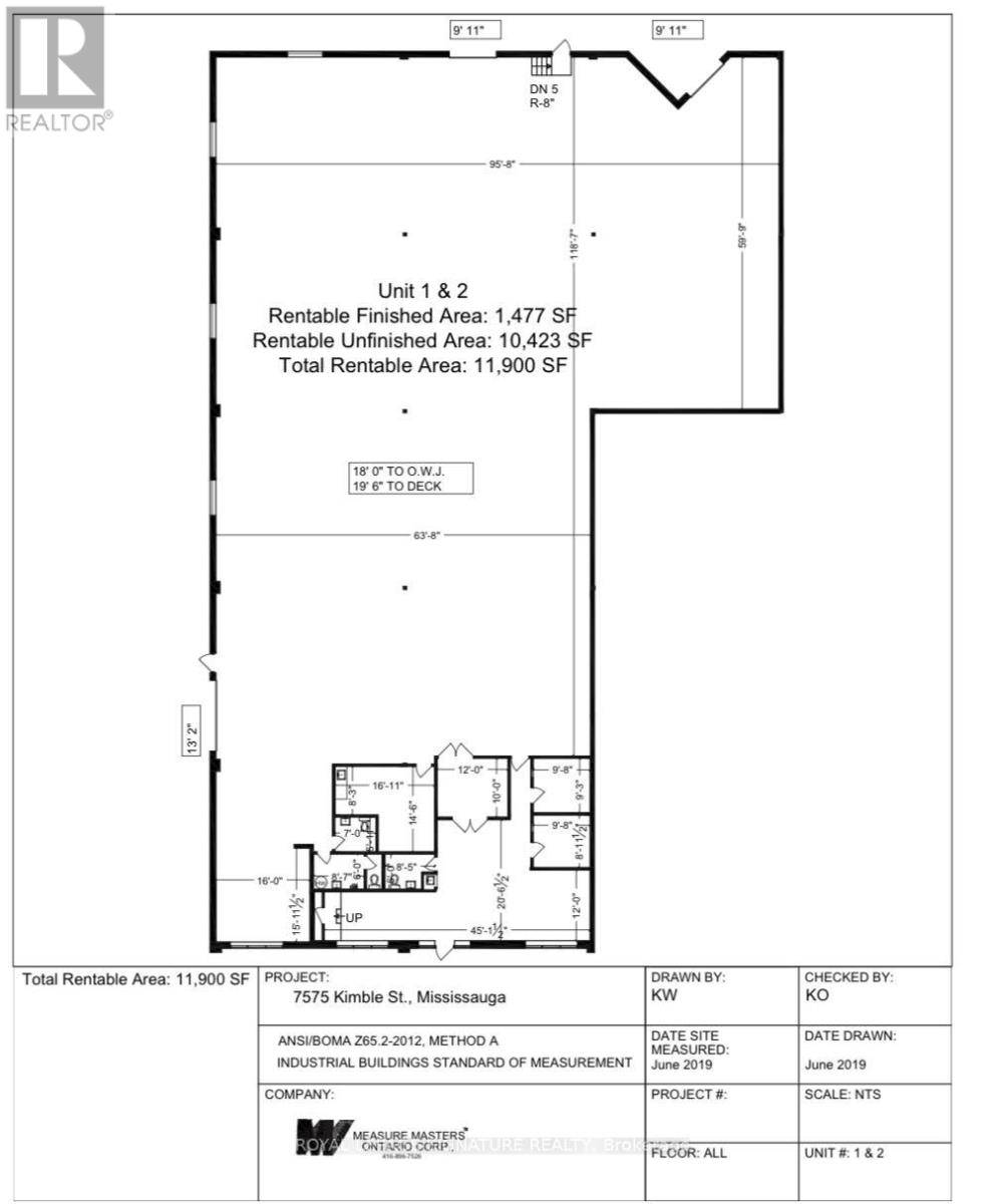
7575 Kimbel ST #1-2 Mississauga (northeast), ON L5S1C8
11,900 SqFt
UPDATED:
Key Details
Property Type Commercial
Listing Status Active
Purchase Type For Rent
Square Footage 11,900 sqft
Subdivision Northeast
MLS® Listing ID W12362061
Source Toronto Regional Real Estate Board
Property Description
Functional end unit warehouse space comprised of 11,900 sq ft (10,423 warehouse and 1,477 office) with 2dock doors, 1 drive in door and a shipping yard accommodating 53 ft trailers. Desirable E3 zoning and prime location on north end of Pearson Airport. Convenient location with easy access to 410, 427, 401. (id:24570)
Location
Province ON
Rooms
Kitchen 0.0
Interior
Heating Coil Fan
Cooling Partially air conditioned
Exterior
Parking Features No
View Y/N No
Private Pool No

GET MORE INFORMATION
QUICK SEARCH



