
31 Deepwood Avenue Salisbury, NB E4J2B3
4 Beds
3 Baths
2,010 SqFt
UPDATED:
Key Details
Property Type Single Family Home
Sub Type Freehold
Listing Status Active
Purchase Type For Sale
Square Footage 2,010 sqft
Price per Sqft $198
MLS® Listing ID NB125556
Style Bungalow
Bedrooms 4
Year Built 2025
Lot Size 8,654 Sqft
Acres 0.19867273
Property Sub-Type Freehold
Source New Brunswick Real Estate Board
Property Description
Location
Province NB
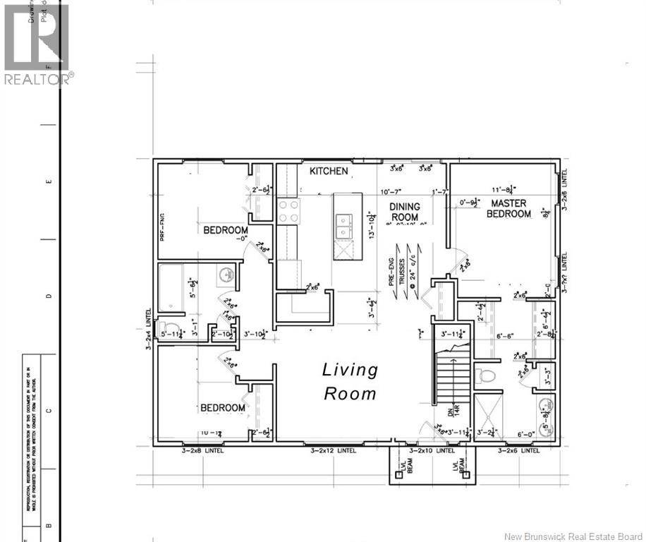
Rooms
Kitchen 1.0
Extra Room 1 Main level 11'0'' x 9'6'' Bedroom
Extra Room 2 Main level 10'0'' x 12'0'' Bedroom
Extra Room 3 Main level 14'0'' x 11'0'' Primary Bedroom
Extra Room 4 Main level 13'9'' x 8'9'' Dining room
Extra Room 5 Main level 14'2'' x 8'11'' Kitchen
Extra Room 6 Main level 17'1'' x 12'0'' Living room
Interior
Heating Baseboard heaters, Heat Pump
Cooling Air Conditioned, Heat Pump, Air exchanger
Flooring Ceramic, Laminate
Exterior
Parking Features No
View Y/N No
Private Pool No
Building
Story 1
Sewer Municipal sewage system
Architectural Style Bungalow
Others
Ownership Freehold






