REQUEST A TOUR If you would like to see this home without being there in person, select the "Virtual Tour" option and your agent will contact you to discuss available opportunities.
In-PersonVirtual Tour

$ 34,707
Active
39666 GOVERNMENT RD #2-200 Squamish, BC V8B1B6
0.59 Acres Lot
UPDATED:
Key Details
Property Type Commercial
Listing Status Active
Purchase Type For Rent
MLS® Listing ID C8072172
Condo Fees $1,100/mo
Year Built 2021
Lot Size 0.587 Acres
Acres 25562.0
Source Greater Vancouver REALTORS®
Property Description
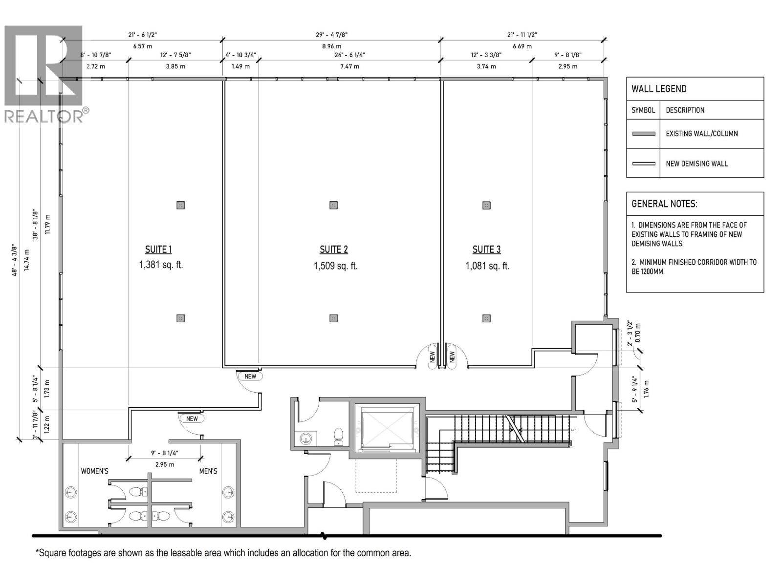
Centrally located, new office space in a quality building by Westurban Developments. This mixed use building is at the north entry of the Squamish Business Park, 5 minutes from all Squamish amenities. The 1,509 sq ft space is bright with floor to ceiling glass and mountain views. Ready for a business to occupy with a generous base unit demise including washroom, fire suppression, HVAC units and 2 commercial washroom rough-ins. Can be demised any size from 1,000 - 3,971 sq. ft. Great parking ratio and very well priced for occupiers or investors! Numerous new projects in the immediate area. Most commercial uses permitted in the flexible MUD-1 zone. Call for more information. (id:24570)
Location
Province BC
Rooms
Kitchen 0.0
Exterior
Parking Features No
View Y/N No
Private Pool No
Others
Acceptable Financing Yearly
Listing Terms Yearly

GET MORE INFORMATION
QUICK SEARCH