Calgary, AB T2E4C7,2105A 7 Street NE
See all 9 photos
Calgary, AB T2E4C7,2105A 7 Street NE
Calgary, AB T2E4C7,2105A 7 Street NE
Calgary, AB T2E4C7,2105A 7 Street NE
Calgary, AB T2E4C7,2105A 7 Street NE
REQUEST A TOUR If you would like to see this home without being there in person, select the "Virtual Tour" option and your agent will contact you to discuss available opportunities.
In-PersonVirtual Tour
Mon
1
Dec
Tue
2
Dec
Wed
3
Dec
$ 1,150,000
Est. payment /mo
Save
New

2105A 7 Street NE Calgary, AB T2E4C7

3 Beds

1 Bath

1,947 SqFt


UPDATED:

Key Details

Property Type Single Family Home

Sub Type Freehold

Listing Status Active

Purchase Type For Sale

Square Footage 1,947 sqft

Price per Sqft $590

Subdivision Winston Heights/Mountview

MLS® Listing ID A2272545

Bedrooms 3

Lot Size 3,000 Sqft

Acres 3000.0

Property Sub-Type Freehold

Source Calgary Real Estate Board

Property Description

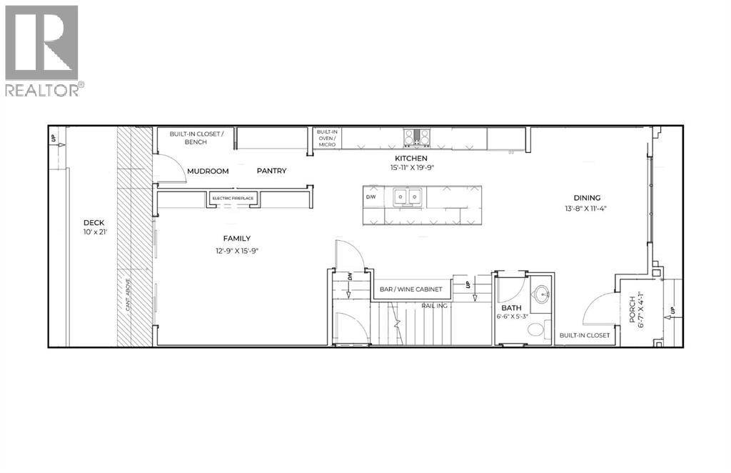
Discover this stunning UNDER-CONSTRUCTION NEW SEMI-DETACHED INFILL featuring a west-facing backyard and an unbeatable location within walking distance to The Winston Golf Club. Step inside and you're immediately welcomed by an open and airy main floor with soaring 10 ft ceilings, 8 ft doors and hardwood flooring throughout the main and upper levels—a space that instantly feels like home. The bright, spacious dining area with large windows sets the perfect stage for hosting dinner parties or enjoying relaxed family meals. The chef-inspired kitchen is a true showpiece, featuring high-end stainless steel appliances, including a gas cooktop and built-in oven/microwave combo, a massive quartz island with breakfast bar, and sleek full-height custom cabinetry for ample storage. The walk-through pantry with built-in shelving and direct access to the rear mudroom adds everyday convenience. At the back, the inviting living room centres around a cozy fireplace and large 10 ft wide sliding door that open to the west backyard, filling the home with natural light. A stylish designer powder room completes the main level. Upstairs, you'll find three spacious bedrooms, each thoughtfully designed for comfort. The primary suite is a luxurious retreat, featuring a spa-inspired ensuite with a heated floor, soaking tub, glass-enclosed shower, dual sinks, and a walk-in closet that offers generous storage. Two additional bedrooms, a modern 4-piece bath, a tiled laundry room with sink, and a versatile bonus space—ideal as an office, reading nook, or play area—complete the upper level. The fully developed LEGAL 2-BEDROOM SUITE (subject to permits & approval by the city) on the lower level offers flexibility for a live-in nanny, extended family, or rental income. With a private side entrance, this suite includes a well-appointed kitchen with full-height cabinetry and quartz countertops, stainless steel appliances, a spacious living area, modern 4-piece bath, separate laundry, and two generous bedrooms. Outside, enjoy your private backyard oasis with a wooden deck and full fencing, perfect for relaxation or entertaining. The double detached garage provides ample room for vehicles, tools, and storage. Located in the vibrant community of Winston Heights, you'll love the friendly atmosphere and nearby amenities—top-rated schools, grocery stores, recreation and aquatic centre, golf course, soccer fields, tennis courts, and off-leash dog parks. Scenic walking and cycling pathways are just steps away, while shopping, dining, and downtown Calgary are only a short drive with easy access to 16 Ave and Deerfoot Trail. Both sides are available. (id:24570)

Location

Province AB

Rooms

Kitchen 1.0

Extra Room 1 Second level 12.67 Ft x 12.00 Ft Primary Bedroom

Extra Room 2 Second level 11.75 Ft x 10.92 Ft Bedroom

Extra Room 3 Second level 10.00 Ft x 10.92 Ft Bedroom

Extra Room 4 Second level 16.17 Ft x 8.67 Ft Bonus Room

Extra Room 5 Second level 8.25 Ft x 9.58 Ft 5pc Bathroom

Extra Room 6 Main level 12.75 Ft x 15.75 Ft Family room

Interior

Heating Forced air,

Cooling See Remarks

Flooring Ceramic Tile, Hardwood, Vinyl Plank

Fireplaces Number 1

Exterior

Parking Features Yes

Garage Spaces 2.0

Garage Description 2

Fence Fence

Community Features Golf Course Development

View Y/N No

Total Parking Spaces 2

Private Pool No

Building

Lot Description Landscaped

Story 2

Others

Ownership Freehold


Powered by: REALTOR.ca
Listed by PREP Realty
AJ Hazzi

AJ Hazzi

Broker | License ID: 1390206

+1(250) 717-3133

GET MORE INFORMATION

Full Name
Phone*
Message

Go tour this home

2105A 7 Street NE